
91直播 | 院务公开 | 招标信息
为了满足南京市儿童医院河西分院患者、家属及周边的需求,提供相关配套服务,现启动南京市儿童医院河西分院下沉式广场第二批次五家商铺招商工作。
一、招商主体及说明
招商主体:南京市宁童实业公司
说明:南京市宁童实业公司系南京市儿童医院投资成立的三产公司,负责南京市儿童医院医疗外第三产业的运营。
二、招商范围
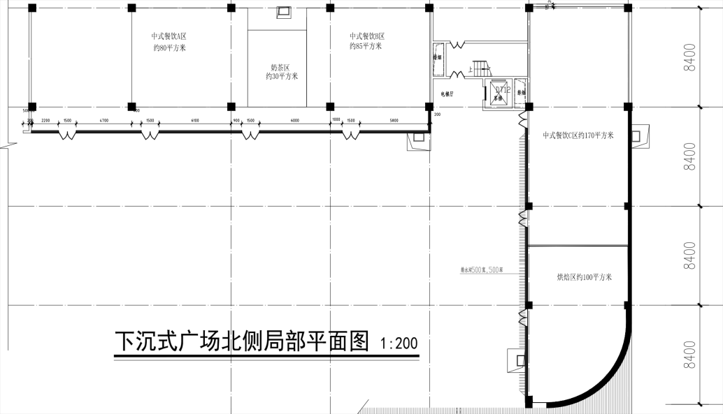
本次招商项目为南京市儿童医院河西分院配套餐饮、零售服务,地址位于南京市建邺区江东南路8号,南京市儿童医院河西分院下沉式广场北侧,招商经营业态为中式餐饮、烘焙、奶茶,具体分布如下图:

注:1、本平面图仅供参考,实际面积以现场为准;
2、本次招商合同年限为3年;
三、准入标准
1.基本条件:
(1)商家性质:公司;
(2)所涉及餐饮业态不使用明火;
2.品牌条件:
1、中式餐饮A区、B区要求为提供综合性餐饮服务的连锁品牌。
2、中式餐饮C区要求提供炒菜功能的中式正餐连锁品牌。
3、奶茶区要求为连锁品牌,包括奶茶、果汁等。
4、烘培区要求为连锁品牌。
5、报名上述业态的品牌注册资金不少于100万元。
3.报名材料:
提供相应资质材料(报名材料):法人代表身份证明、法人授权委托书、营业执照复印件(三证合一)、报名公司系加盟性质的,还需提供在有效期内的品牌授权书。上述复印件均需加盖单位公章。
四、合作要求
(1)与南京市儿童医院和南京市宁童实业公司在既往的合作中无任何资金拖欠、失信行为或其他有争议未达成一致事项。
(2)需在南京市宁童实业公司提供的合同范本基础上进行商务洽谈,合同履行过程中需接受南京市宁童实业公司开出的相应票据、收据。
(3)诚实守信,按时足量缴纳合作费用,依法缴纳各项税收,出具相关票据,不偷逃税款。
(4)需接受现有的水电、暖通等硬件物业条件。
注:所有业态配备上下水、油烟主管道、集中隔油设备;其中中式餐饮A区、B区配备100KW电量;中式餐饮C区配备120KW电量;烘焙区配备100KW电量;奶茶区配备25KW电量。
四、招商方式及流程
本次招商采取公开竞争,择优选择的方式,工作流程为:
报名登记——资质审核——招商洽谈——发放招标材料——商家编制提交投标材料——评审择优——确定中标商家——签订协议。
五、报名登记时间
2016年9月19日始截止时间为2016年9月26日17:00,逾期不再接受报名。(工作日接待时间8:30-12:00;14:00-17:00)
联系单位:南京市宁童实业公司
联系地址:南京市广州路72号5号楼2楼
联系电话:18951769772
联系人:张女士
广州路院区:南京市鼓楼区广州路72号 河西院区:南京市建邺区江东南路8号
版权所有@91直播-91大神直播平台
91zhibopt.com All rights reserved 备案号:苏ICP备05036229号-1
苏公网安备32010502011205号